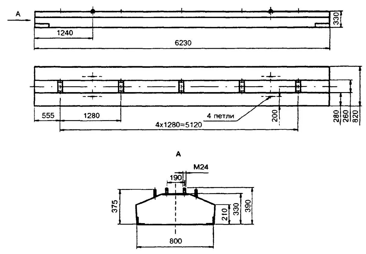
Крановый путь тип