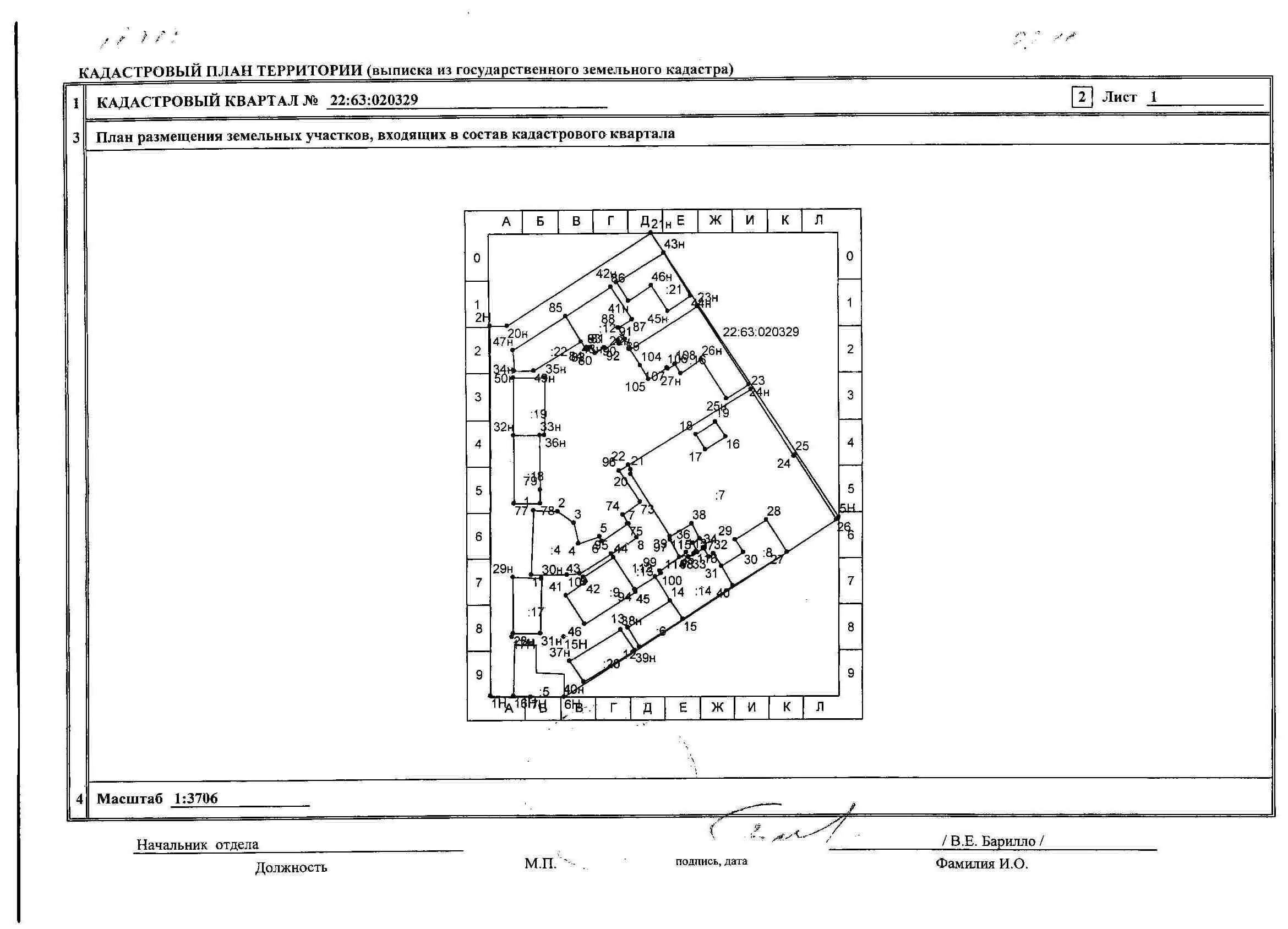
Кпт 2