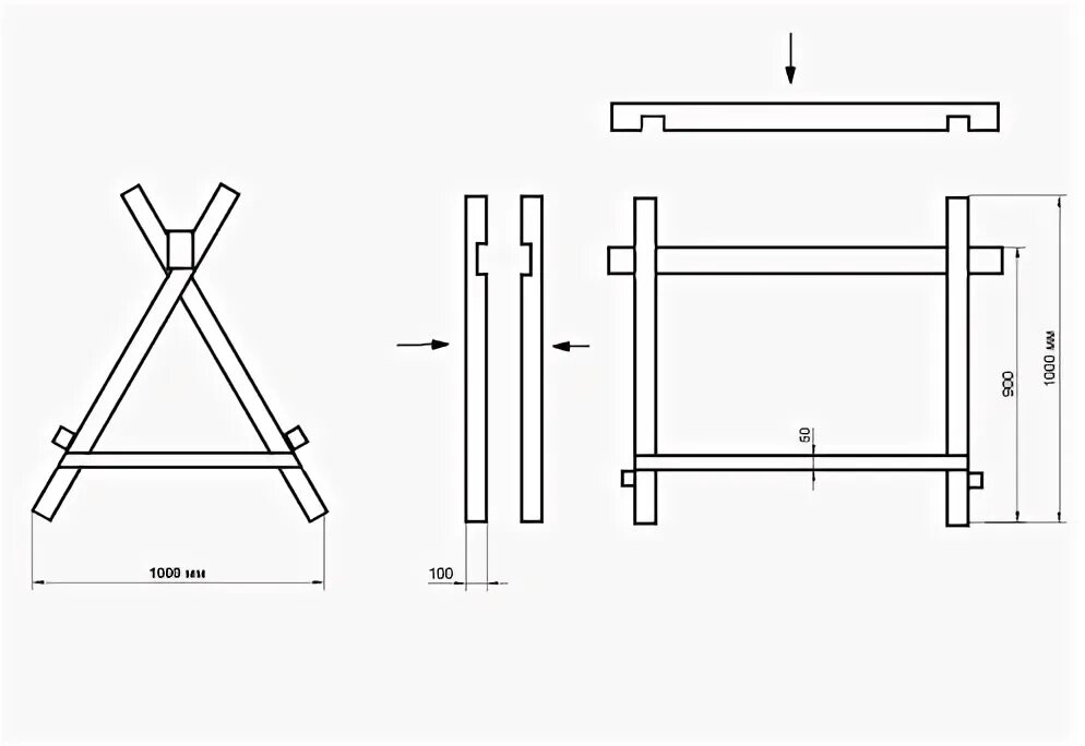
Козлы для дров