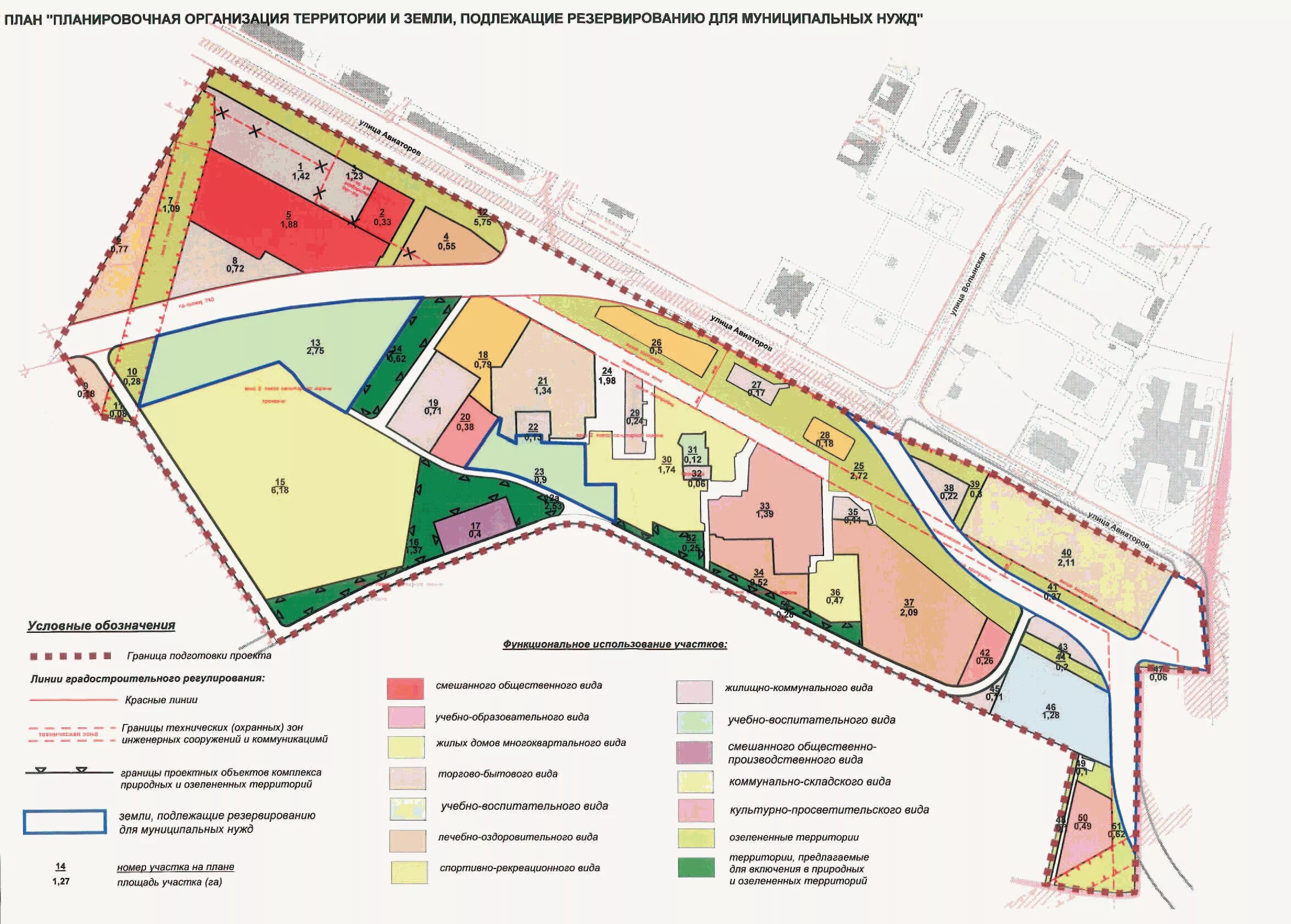
Комплексное планирование территории