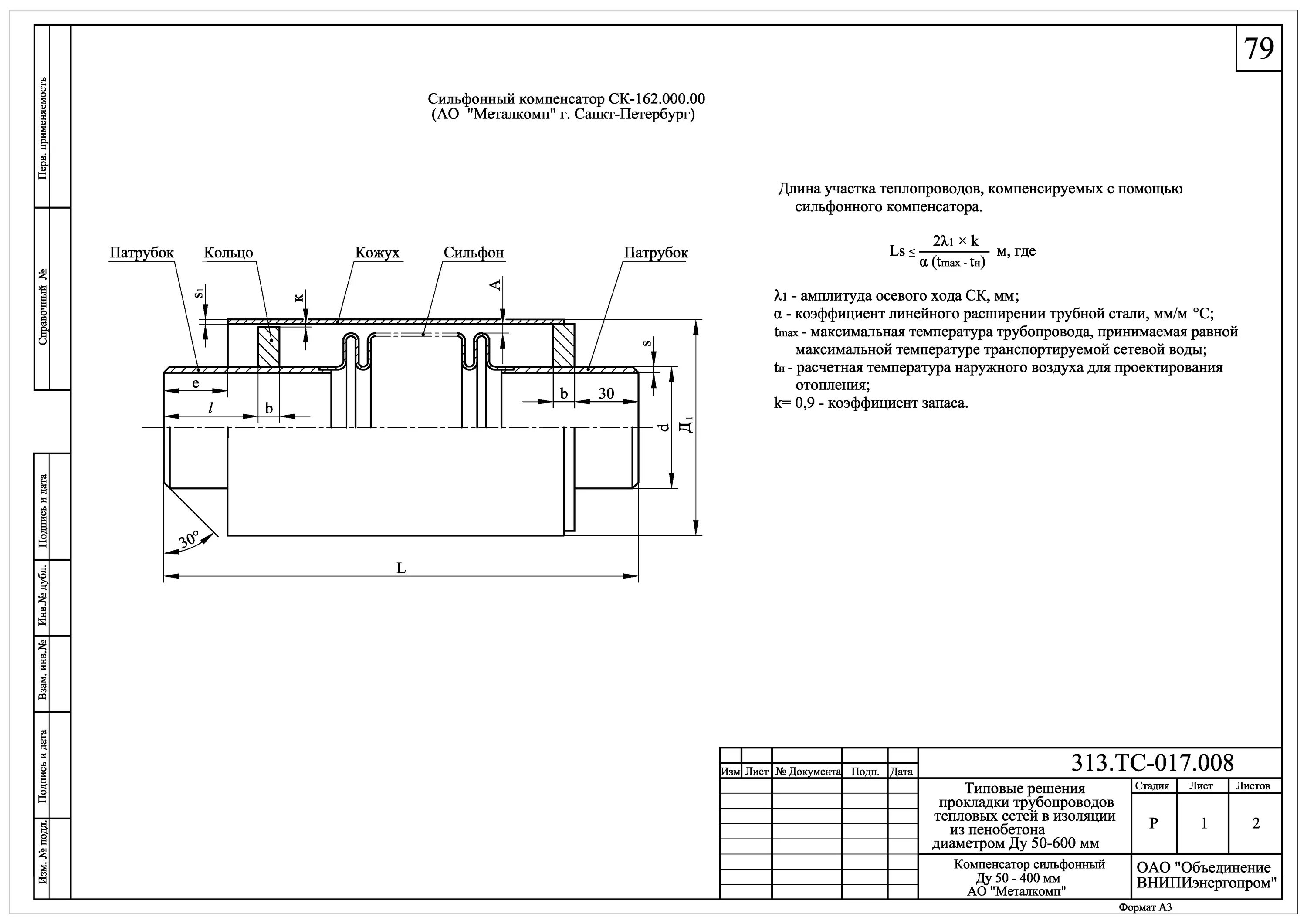
Компенсация тепловых сетей