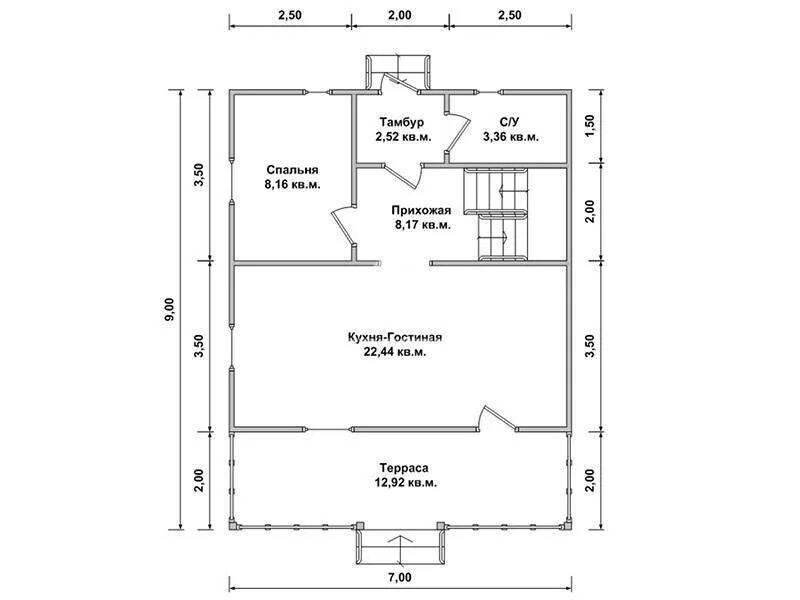
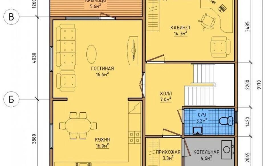
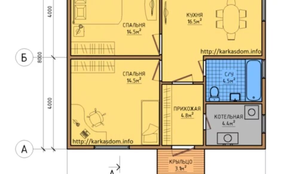
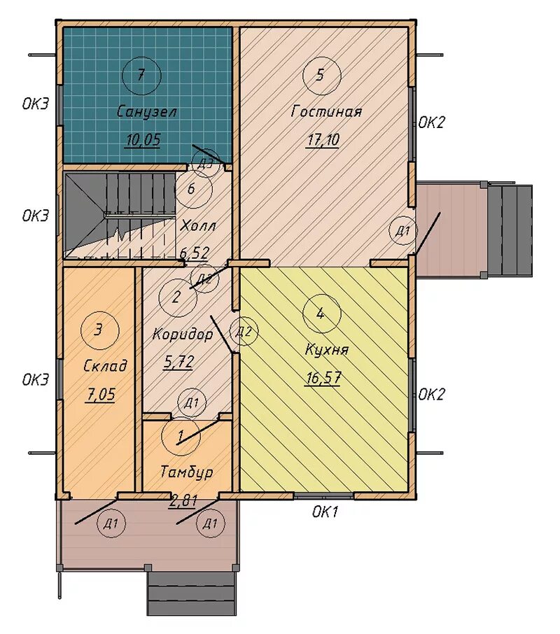
Каркасный дом 7 7 проект