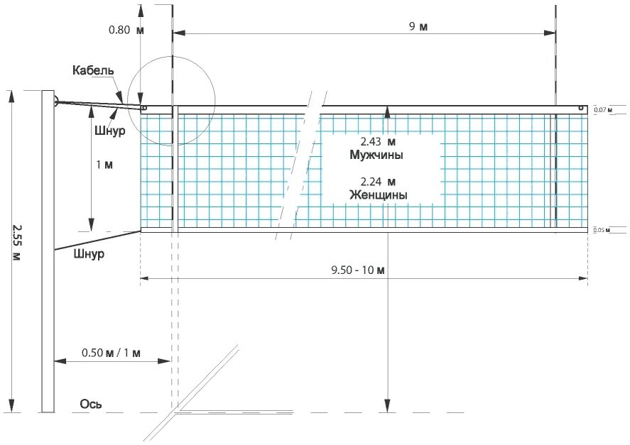
Какой ширины должны быть площадки