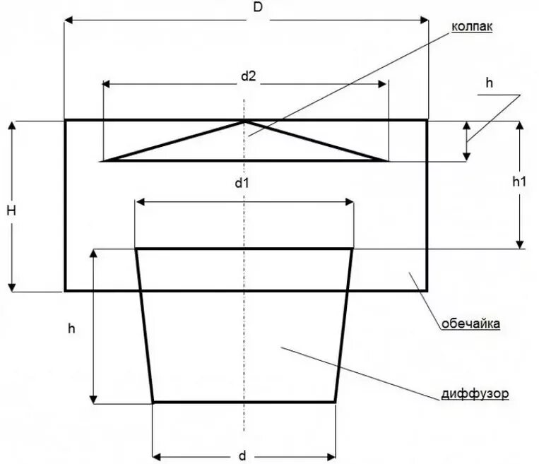
Какой должен быть дефлектор