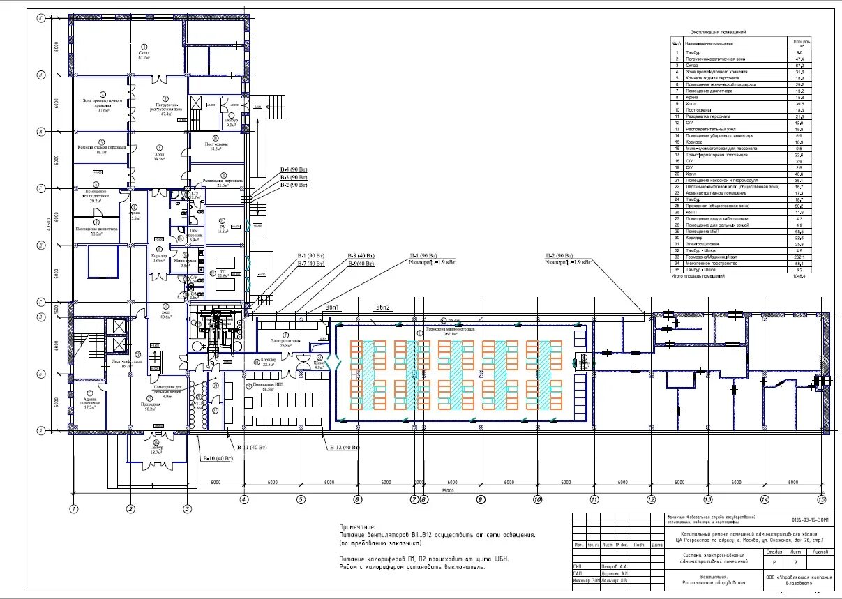
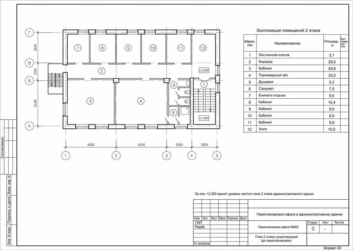
Какие помещения в административном здании