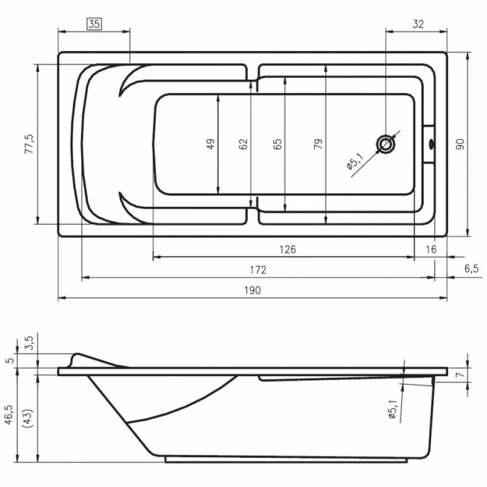
Какие бывают размеры ванн