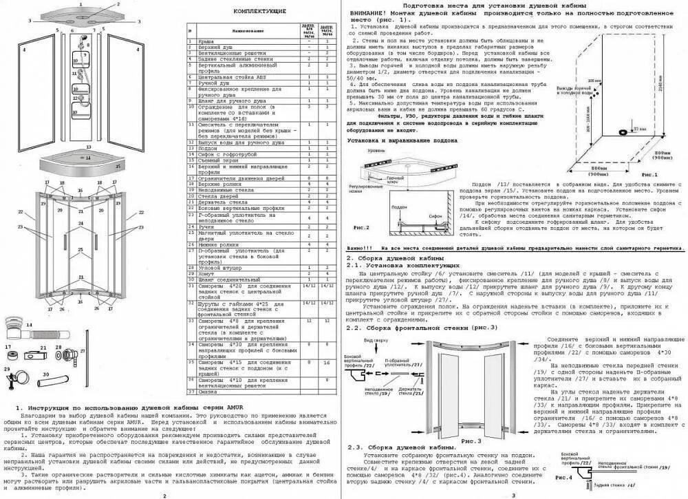
Как собрать душевую самому