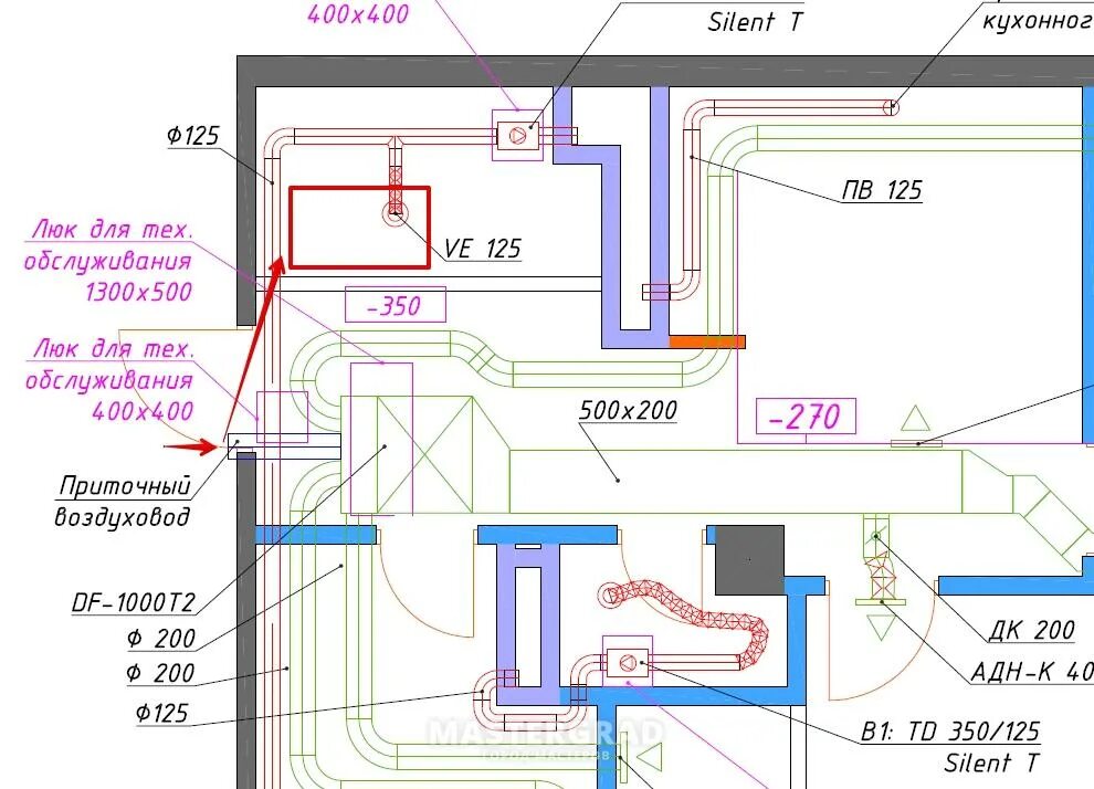
Как сделать вытяжку и приточку