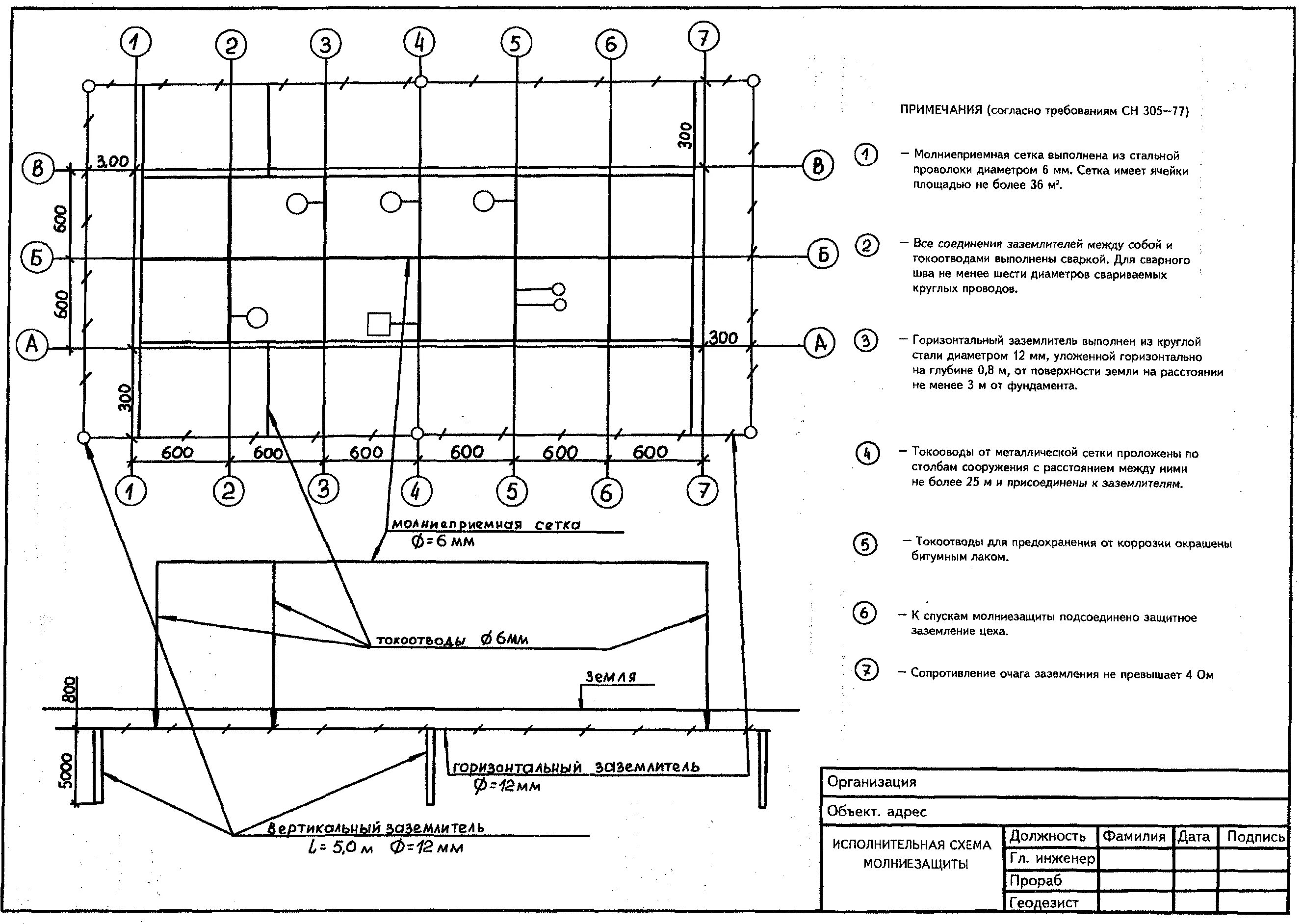
Как сделать исполнительную схему