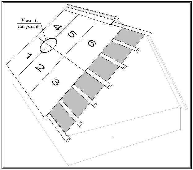
Как правильно шифер