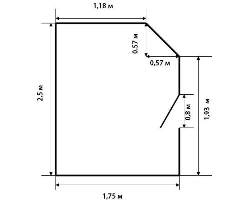
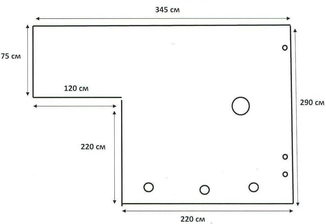
Как посчитать площадь потолка