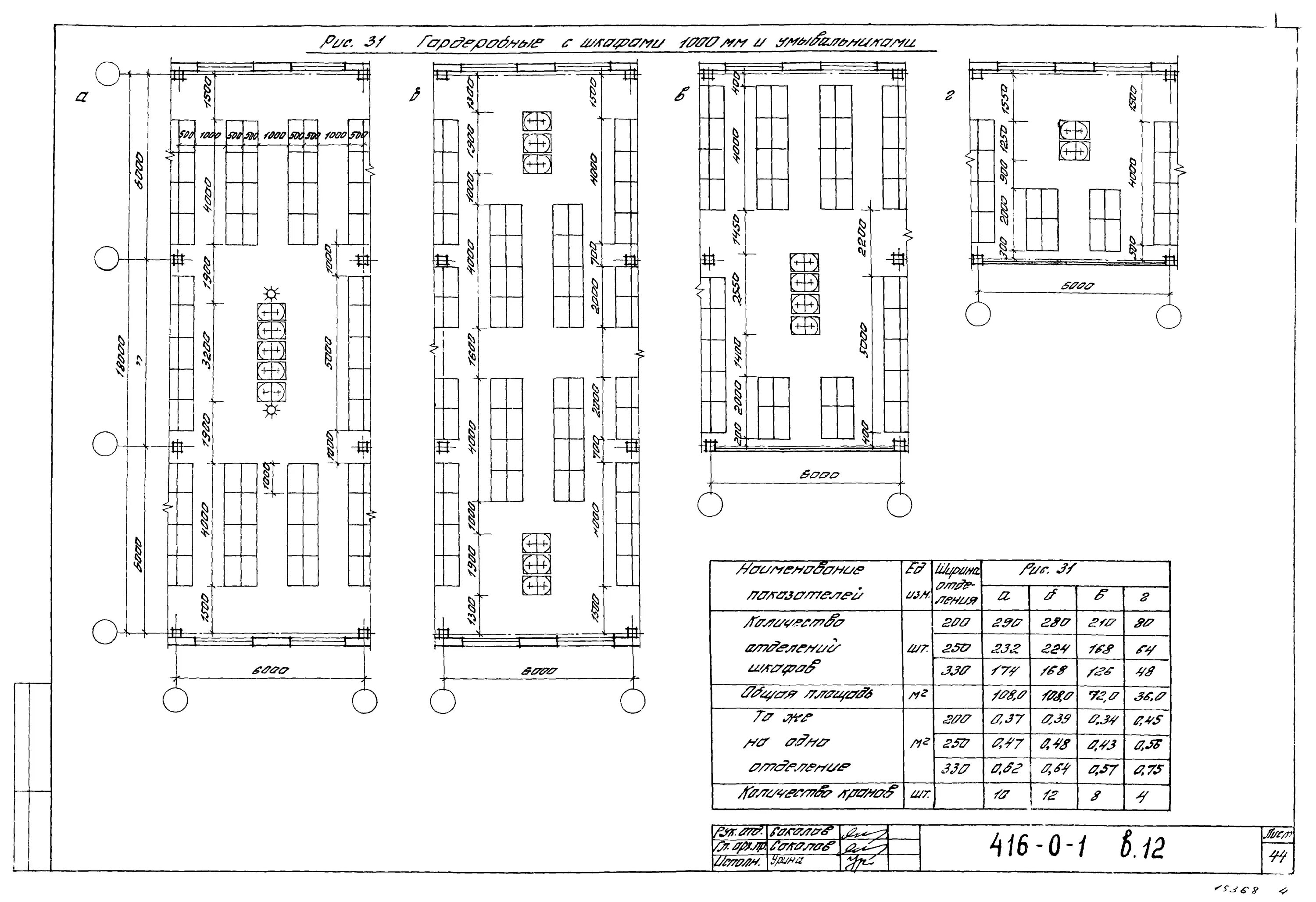
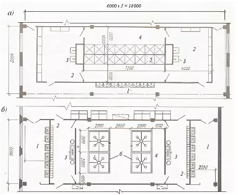
Как определяется состав площадь санитарно бытовых помещений