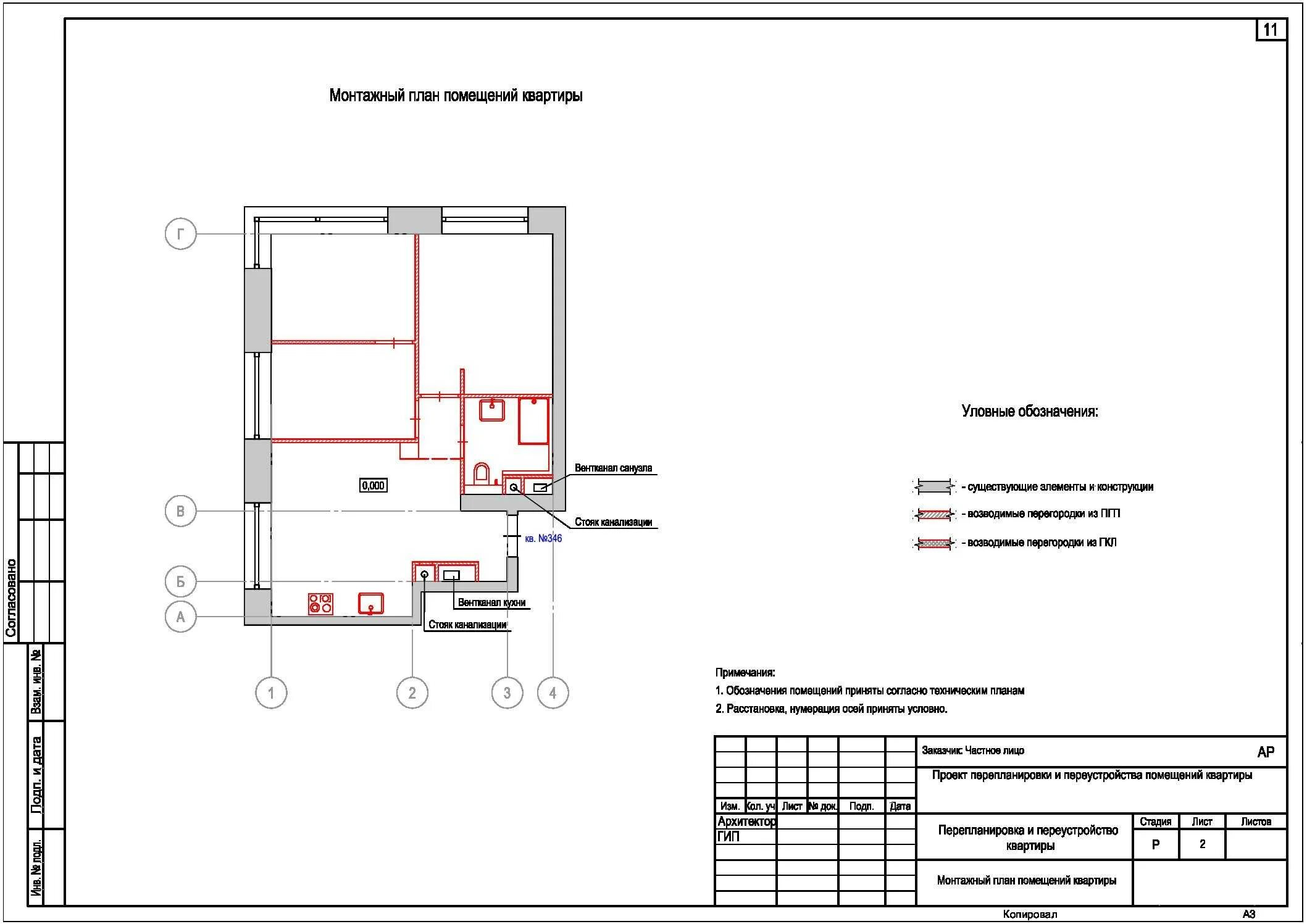
Как оформить перепланировку квартиры самостоятельно