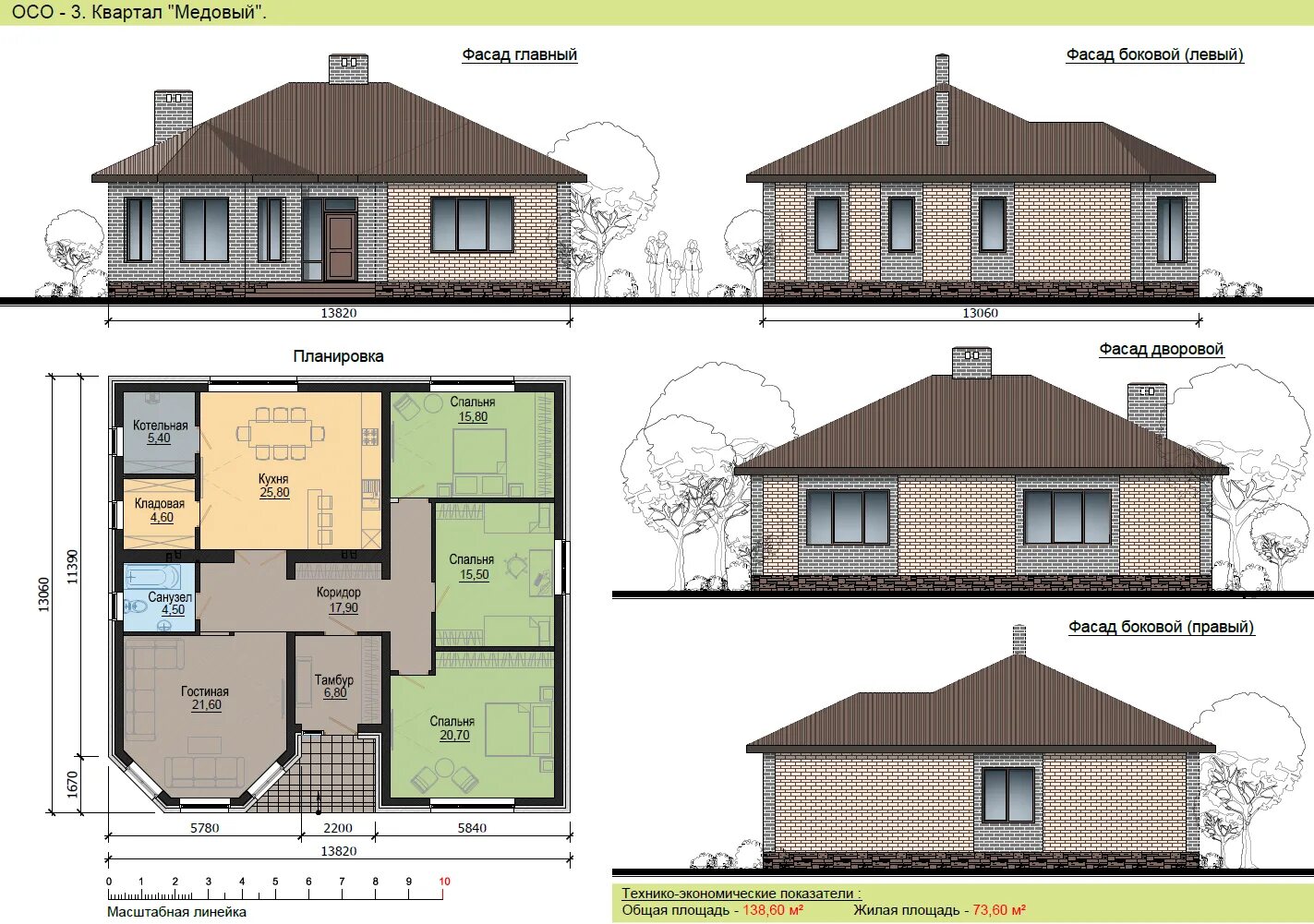
Информация о площади дома