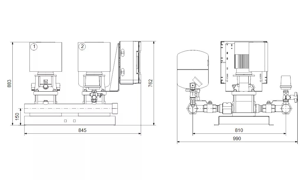
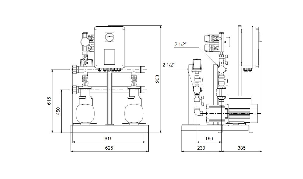
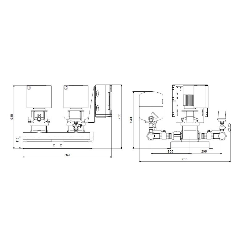
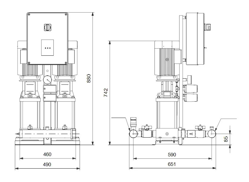
Hydro multi