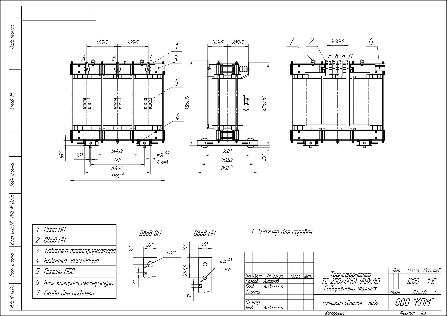
Характеристики трансформаторов тс