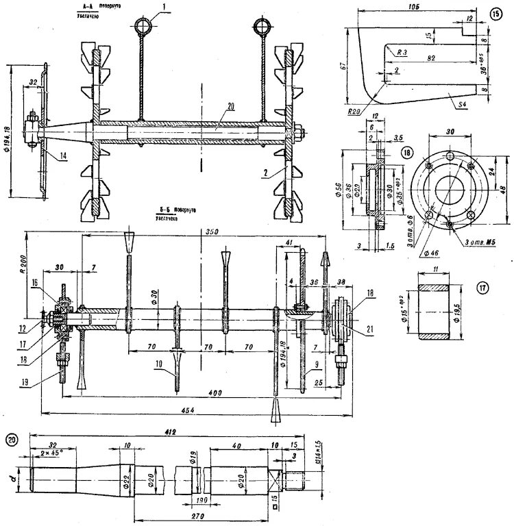
Гусиные лапки своими руками чертежи и размеры