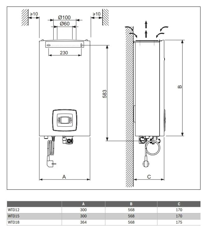
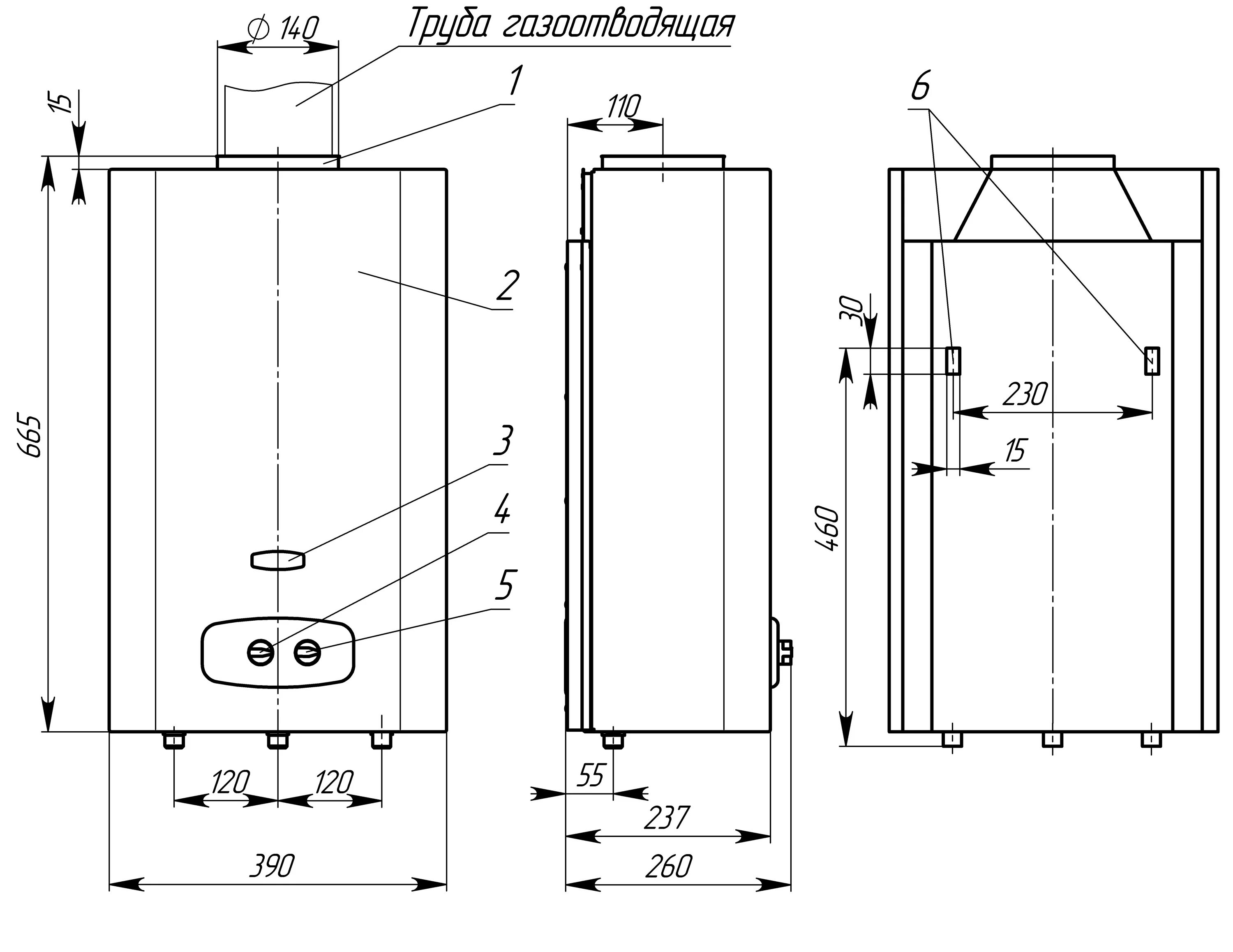
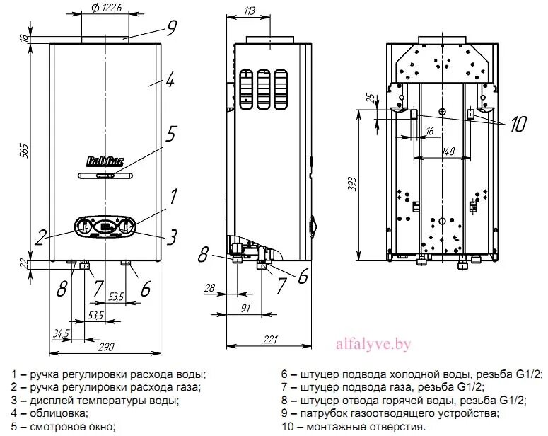
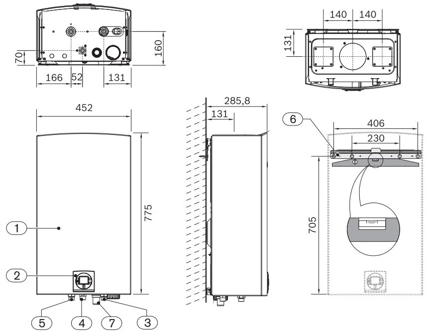
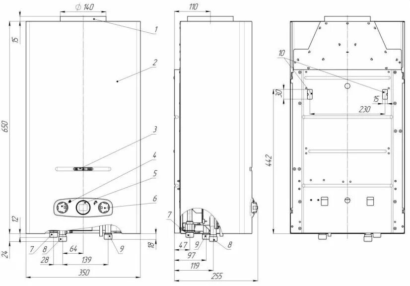
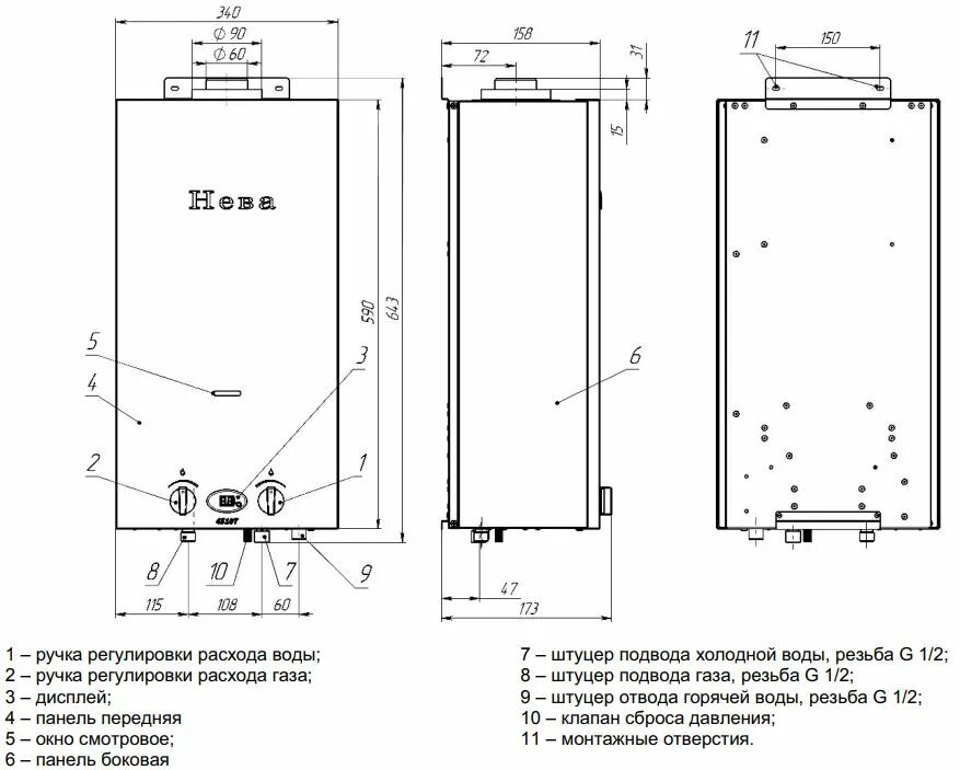
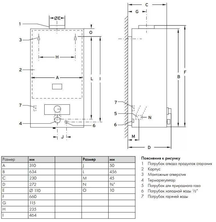
Габариты газовой колонки