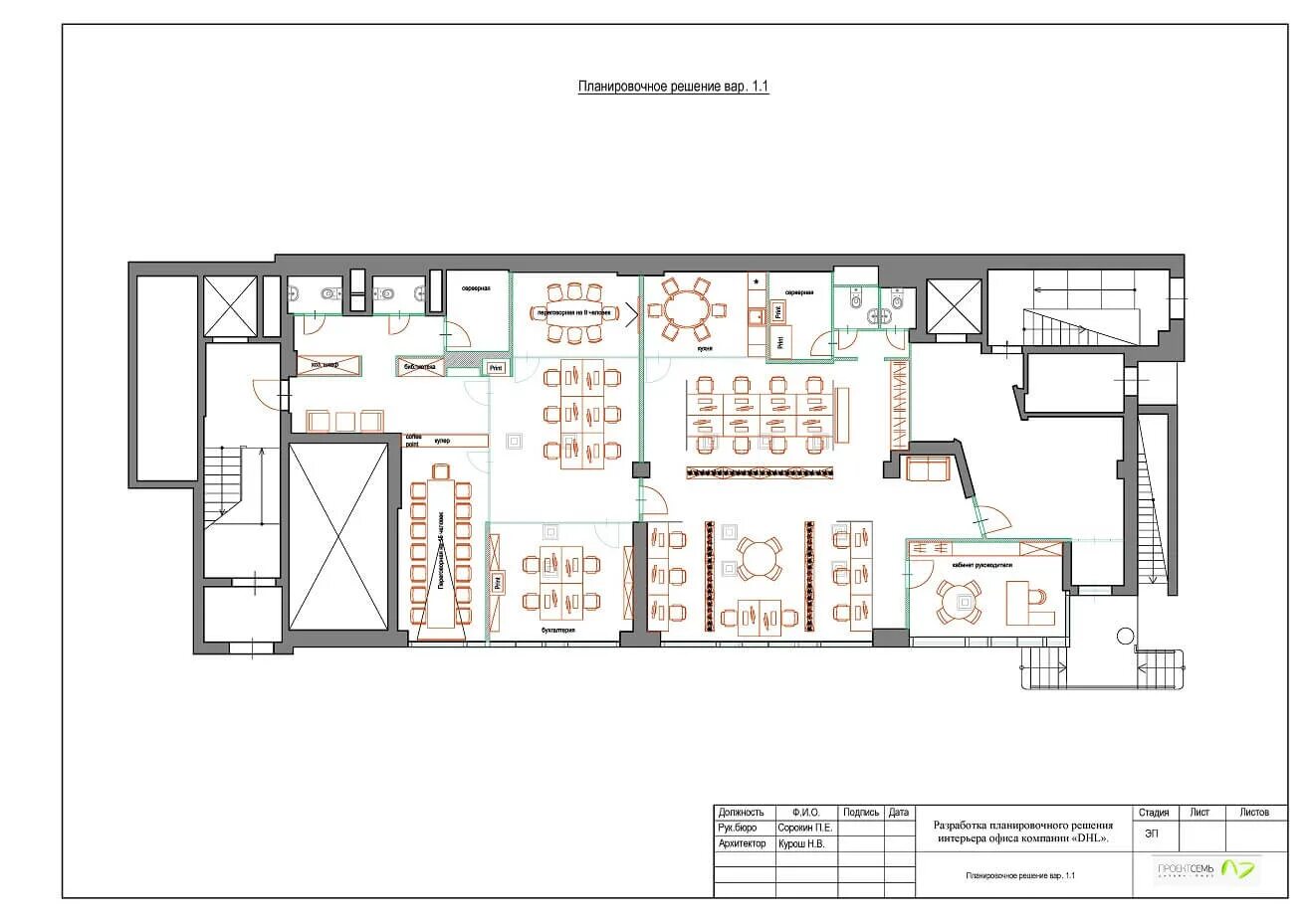
Функционально планировочное решение зданий