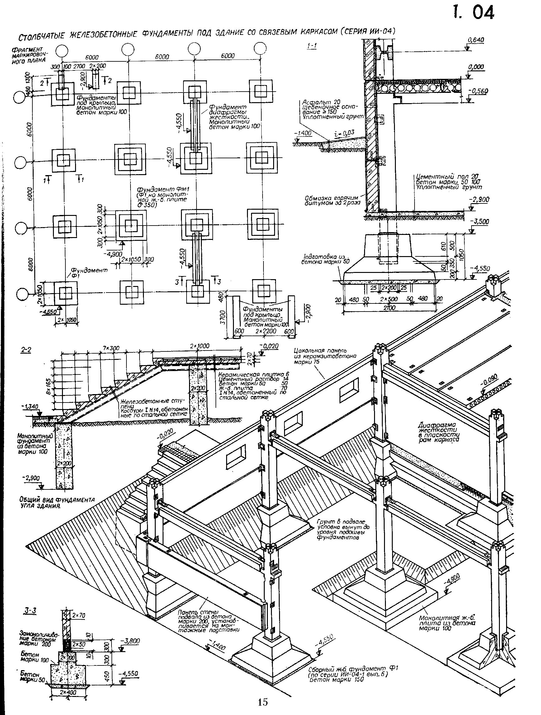
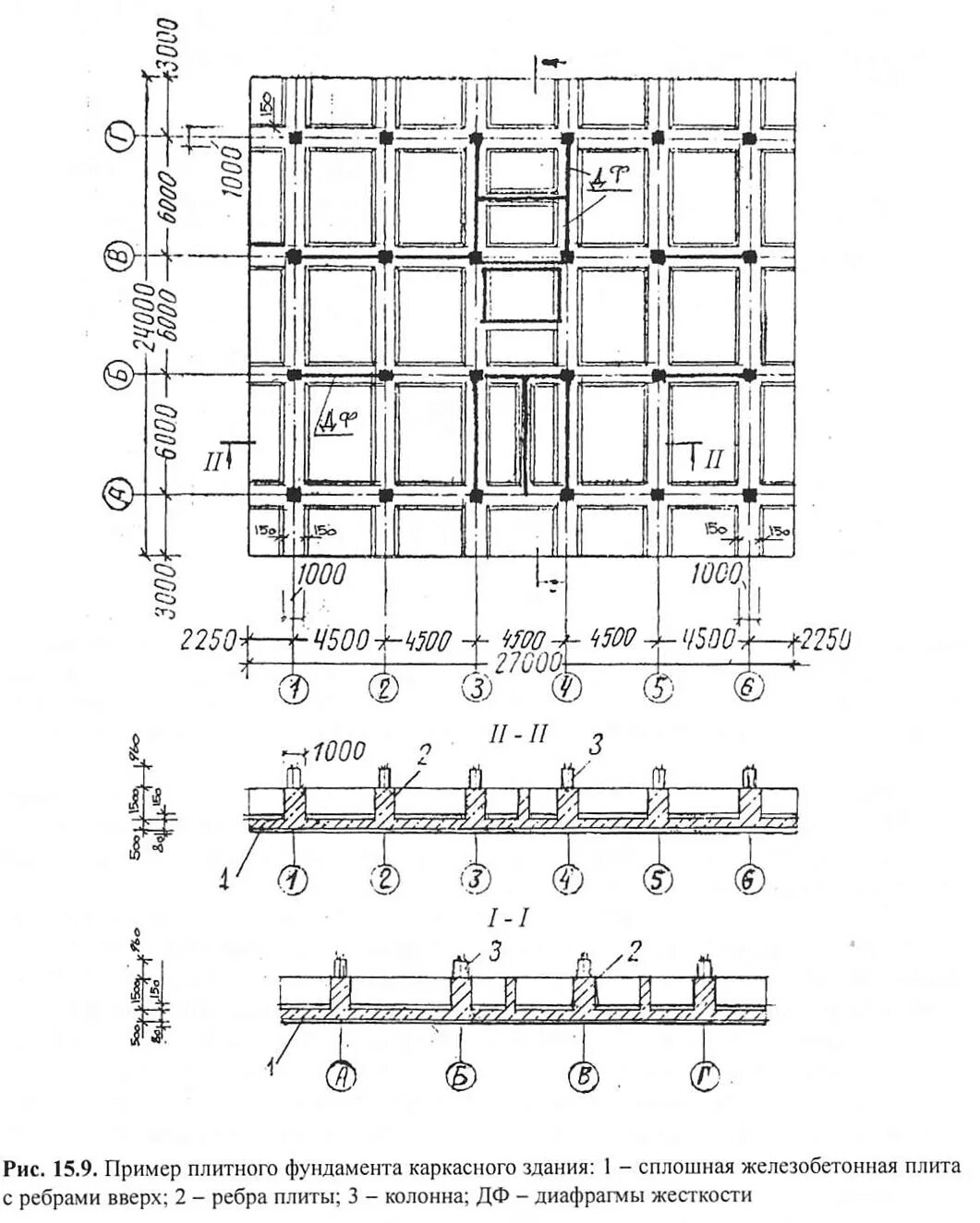
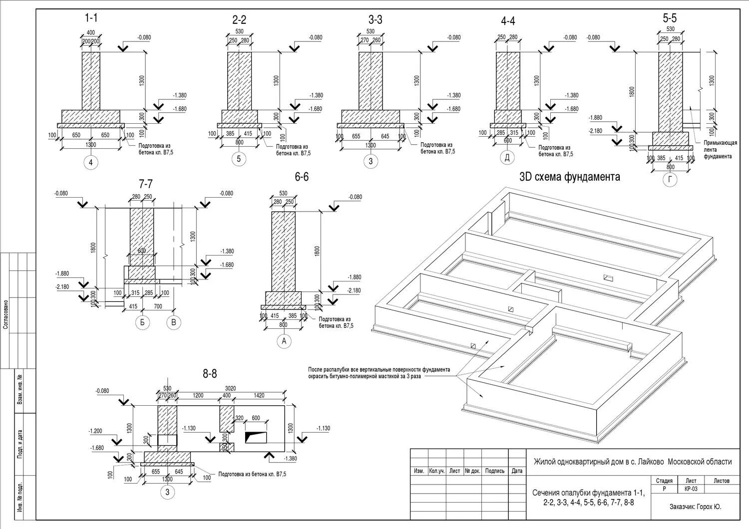
Фундаменты каркасных зданий