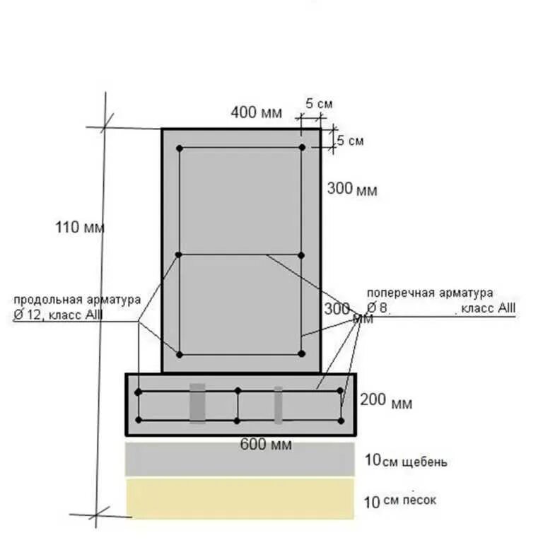
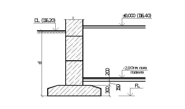
Фундамент глубиной 1 метр