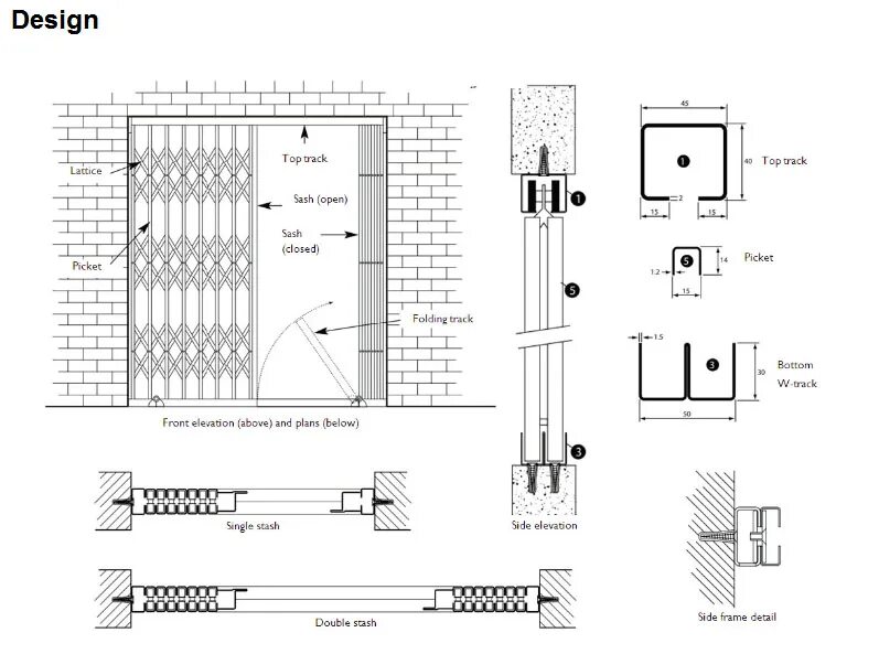
Fixed plan