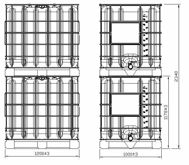
Ex size