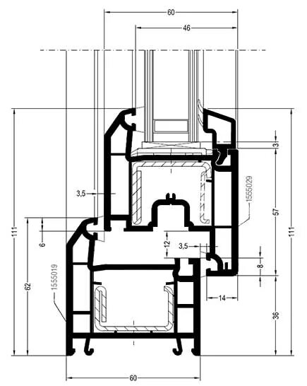
Доступным профиль