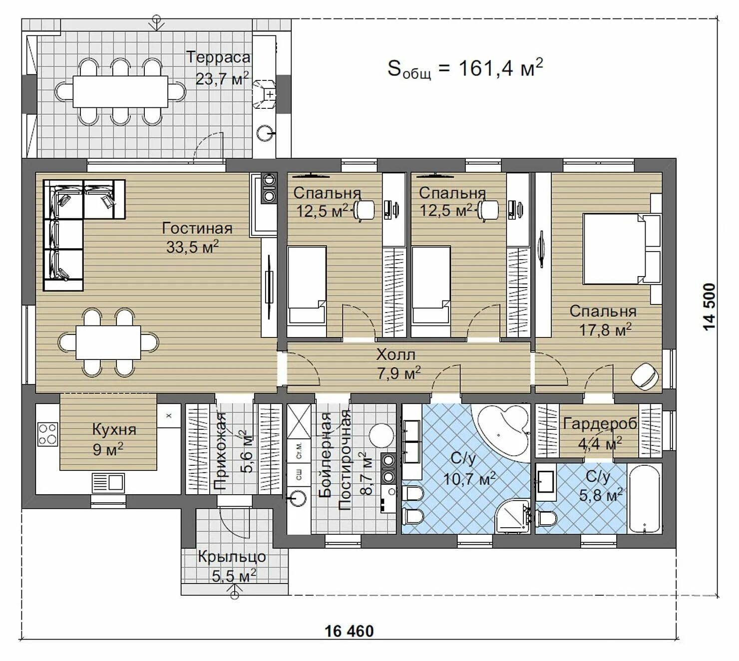
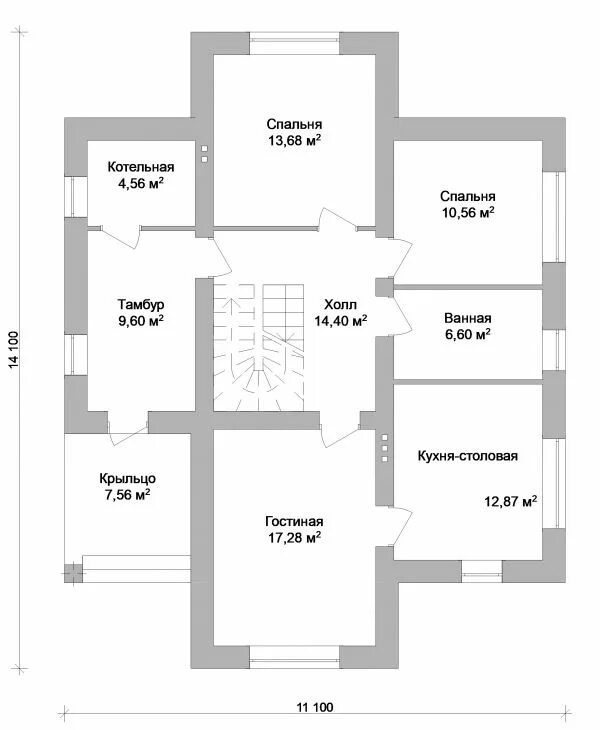
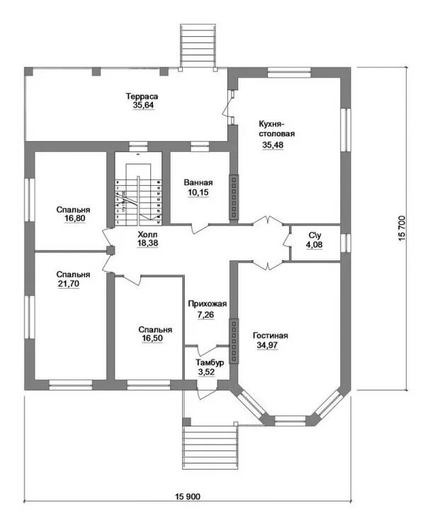
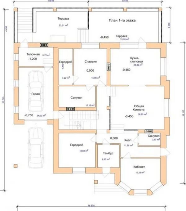
Дом с 4 спальнями