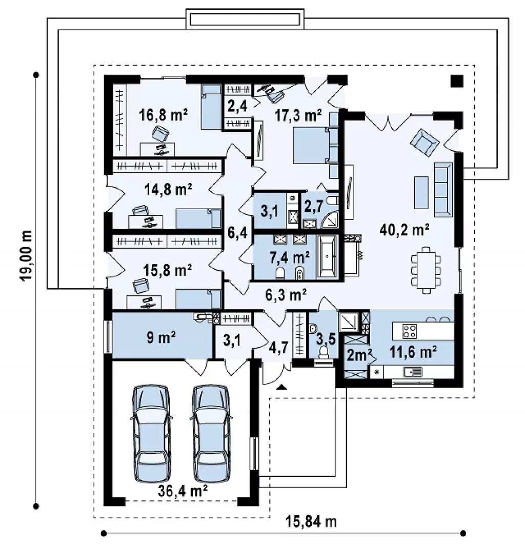
Дом четыре спальни