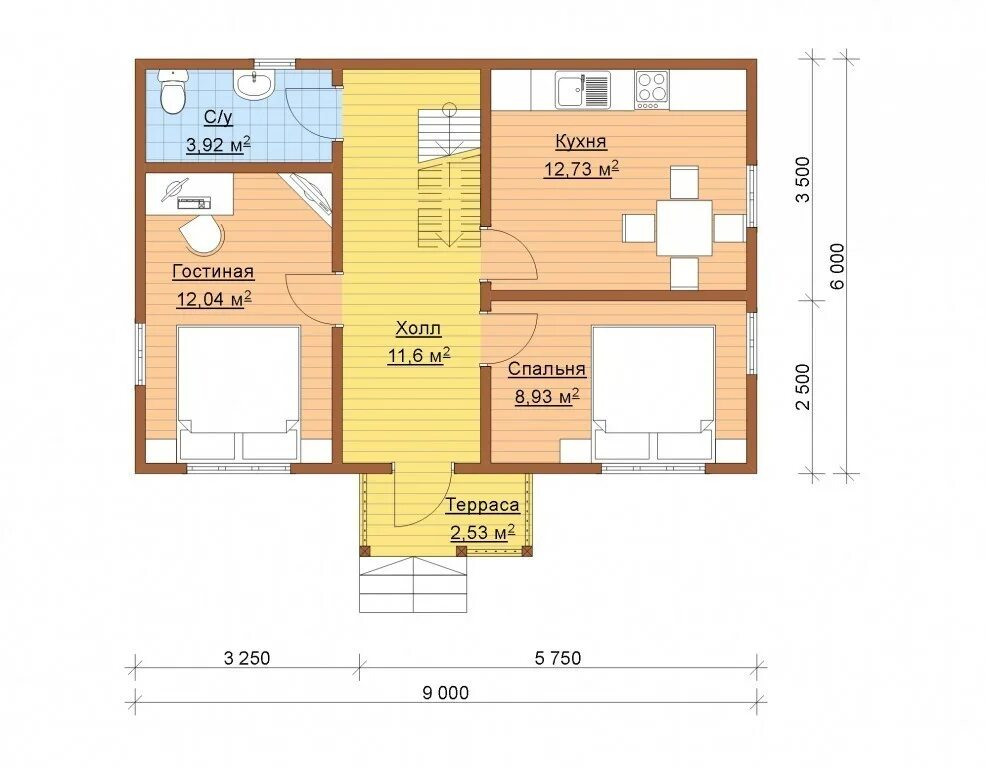
Дом брус 6 9 проект