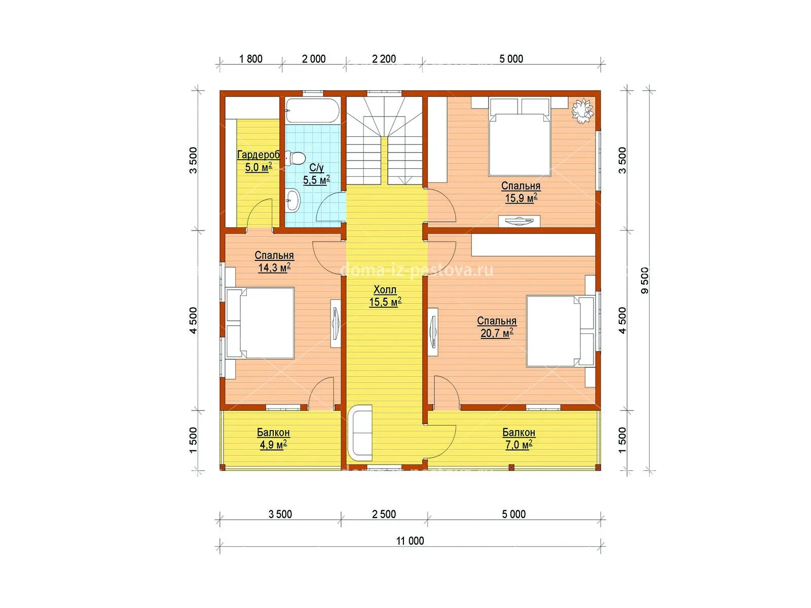
Дом 9 11 двухэтажный