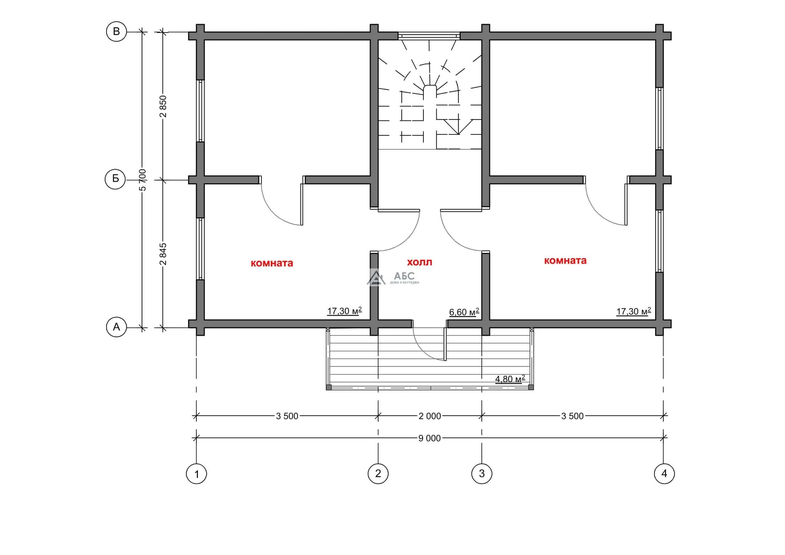
Дом 8 8 одноэтажный с печкой