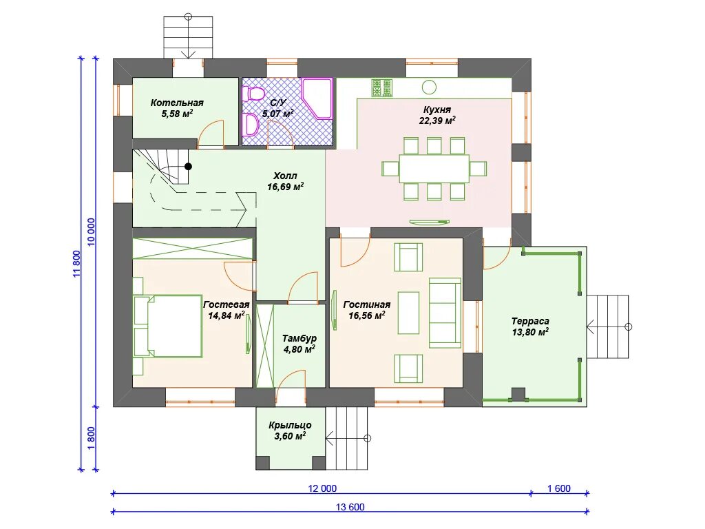
Дом 10 15 1 этаж