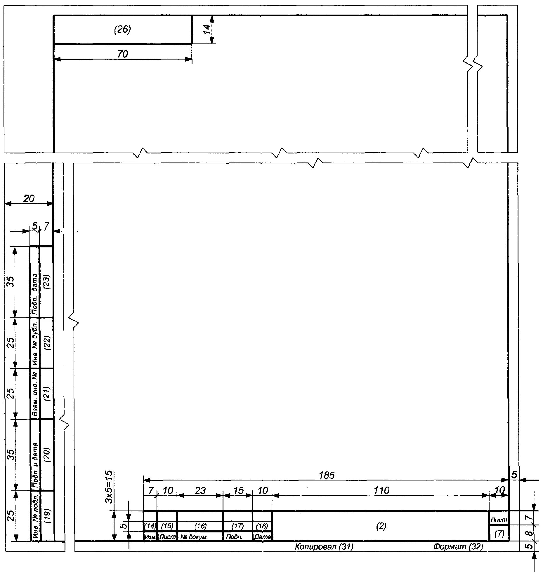
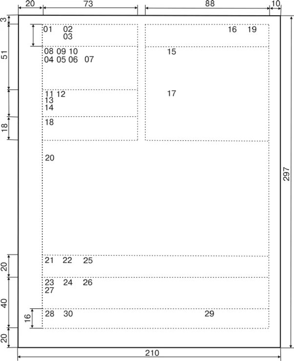
Документ формат а4