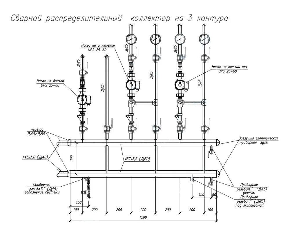
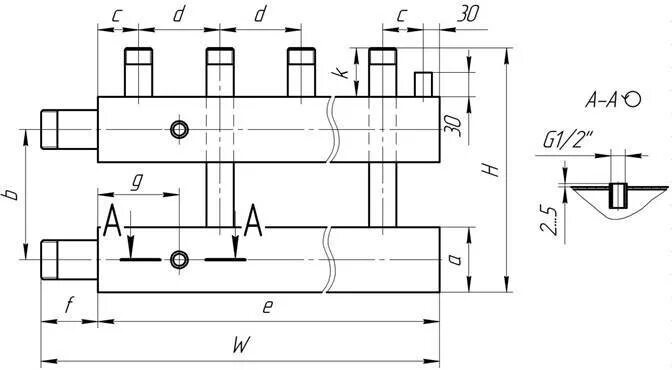
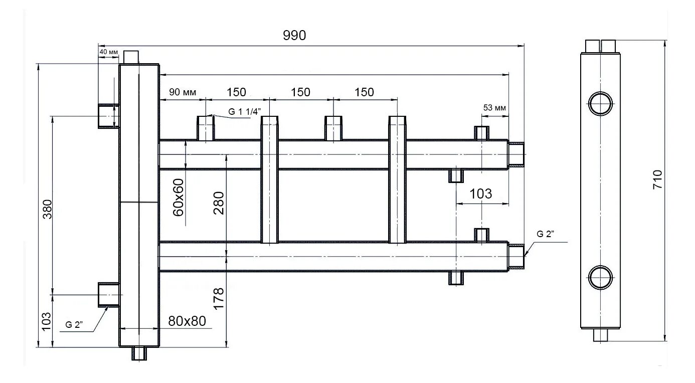
Диаметр трубы коллектора