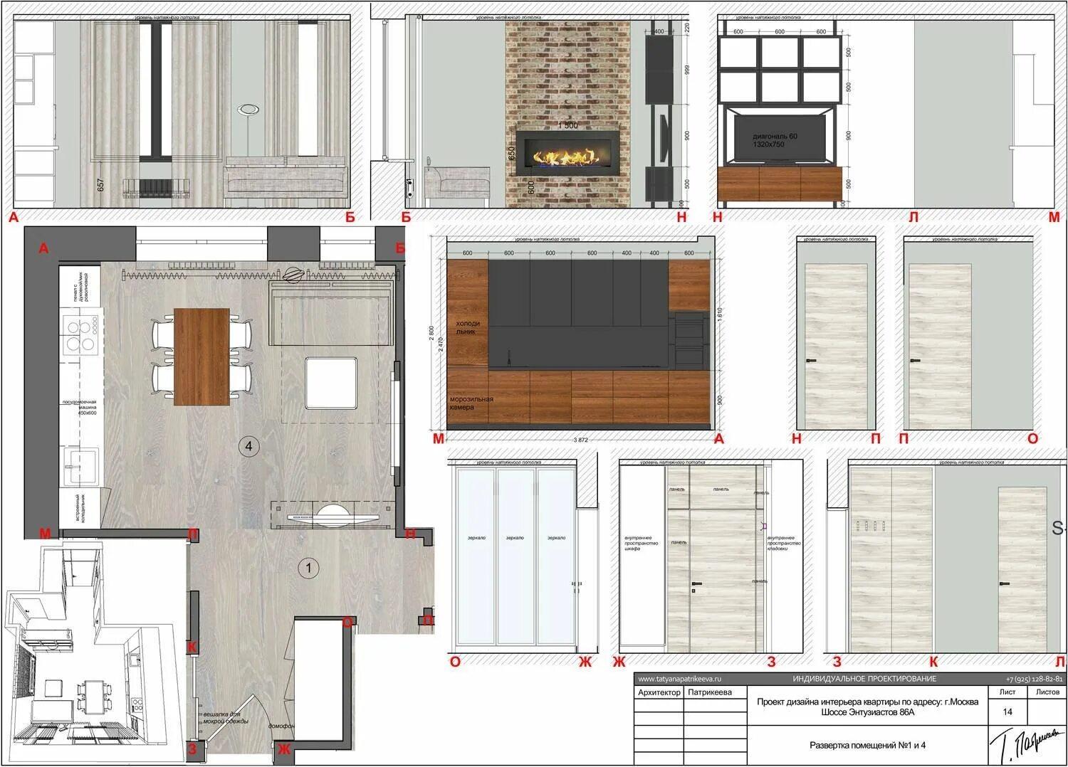
Диагональ развертки