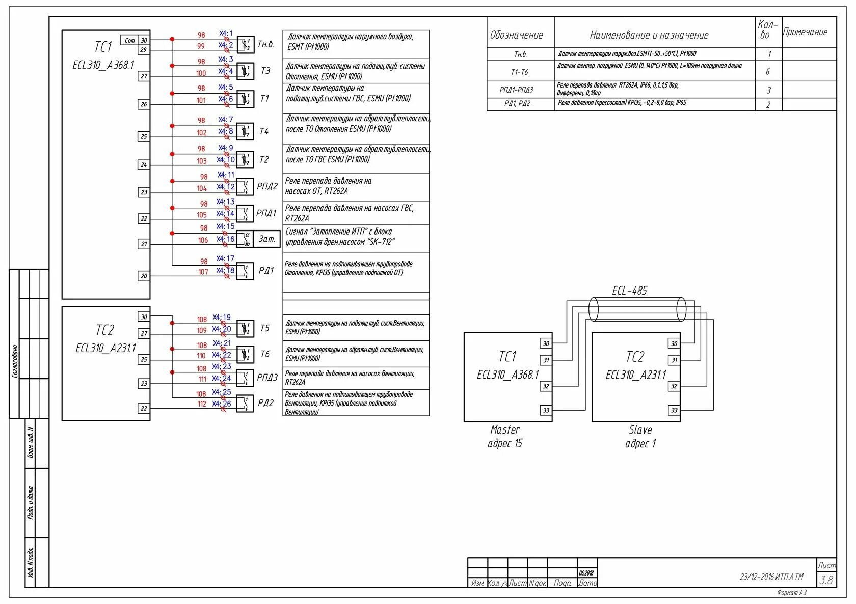
Danfoss 310