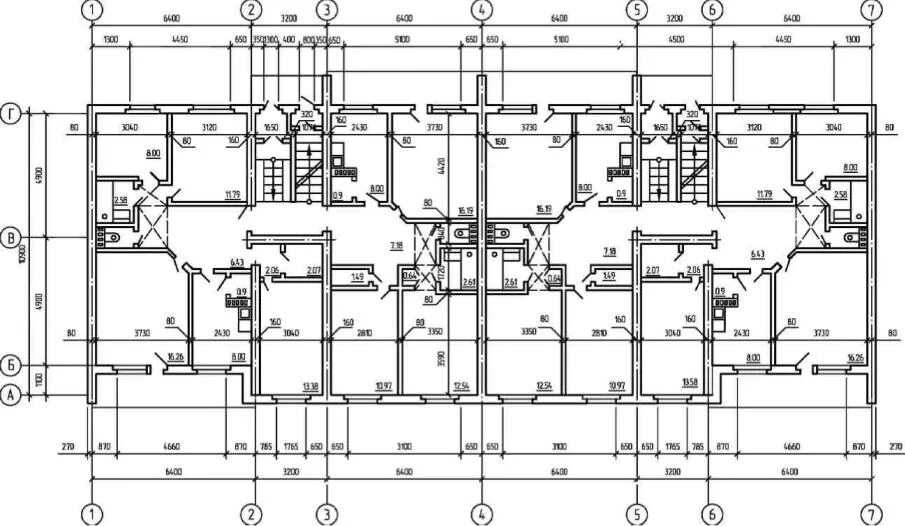
Что называют планом здания