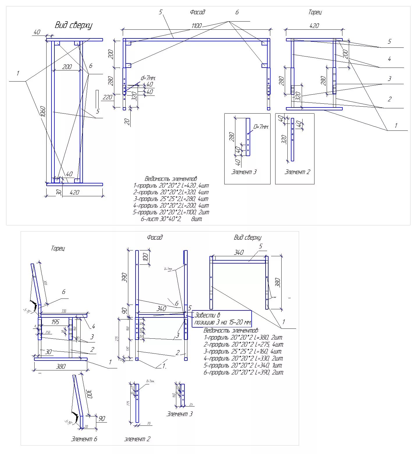
Чертежи стульев из профильной трубы своими руками