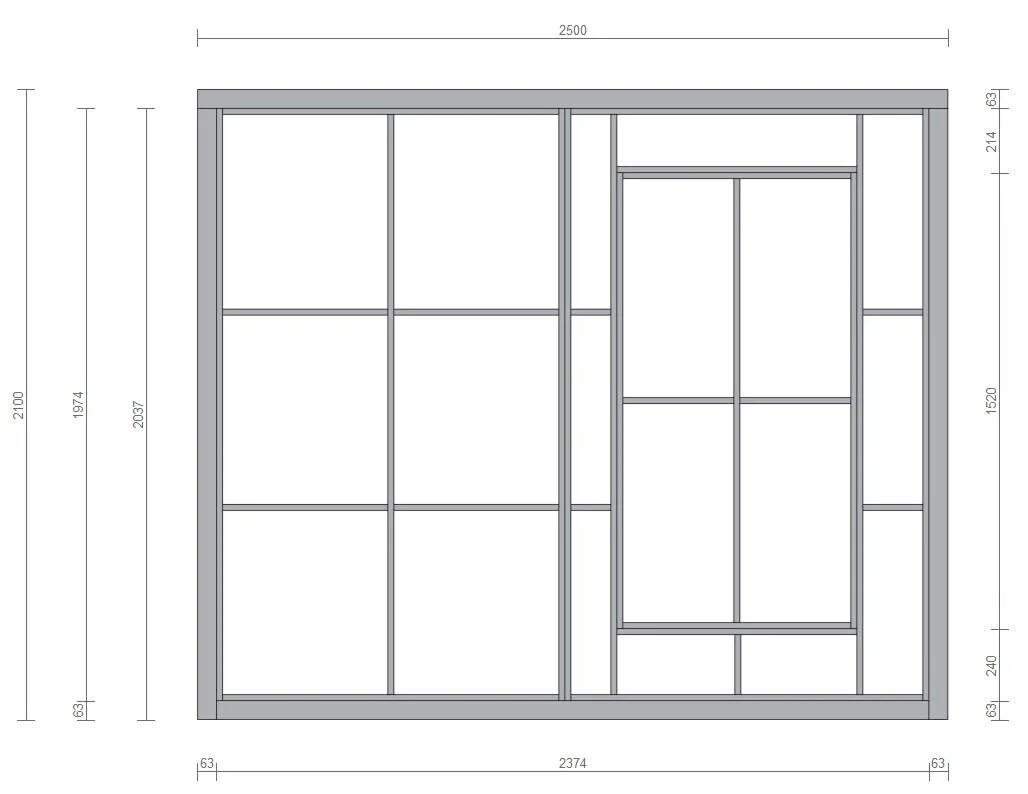
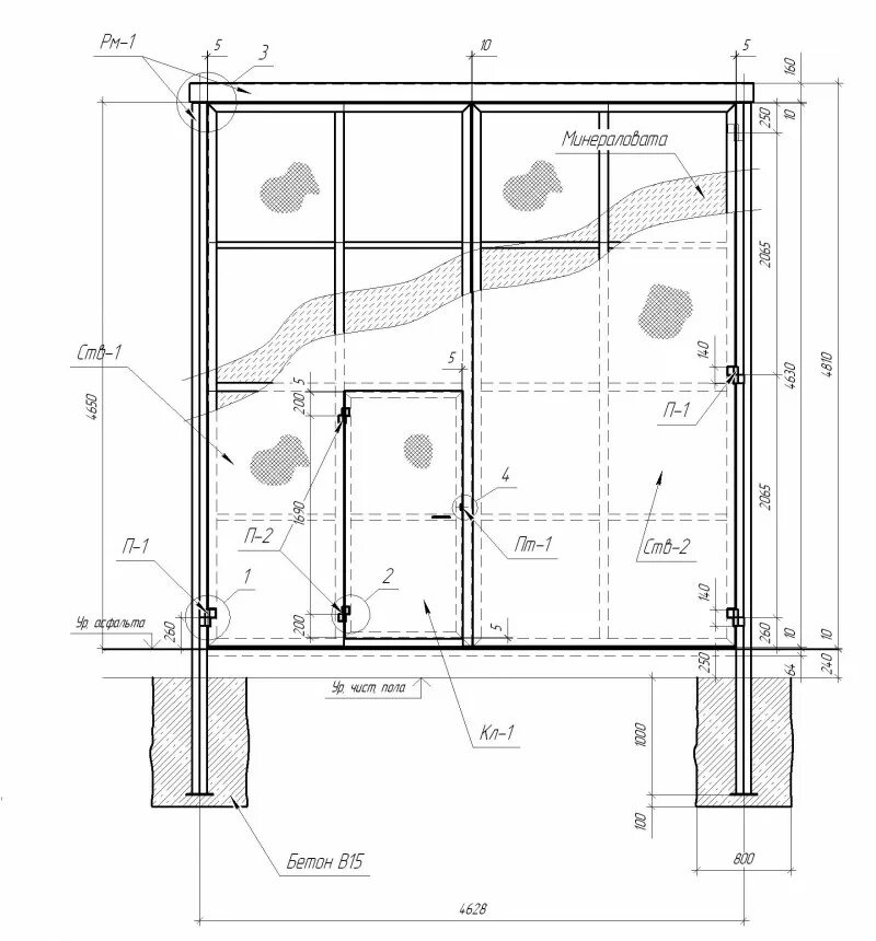
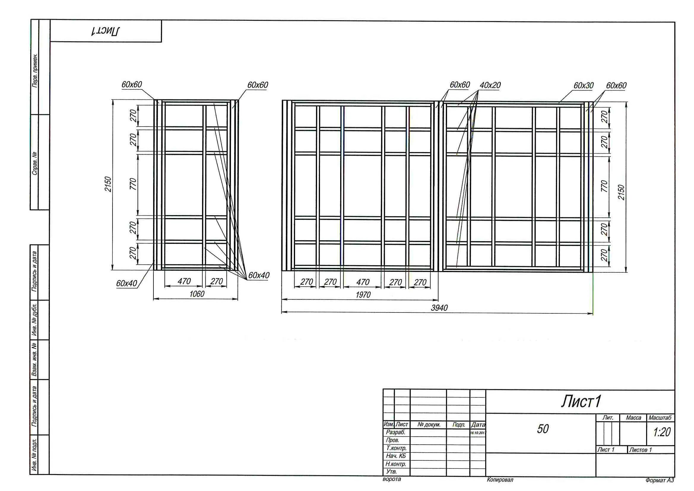
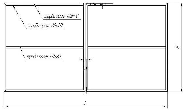
Чертежи распашных