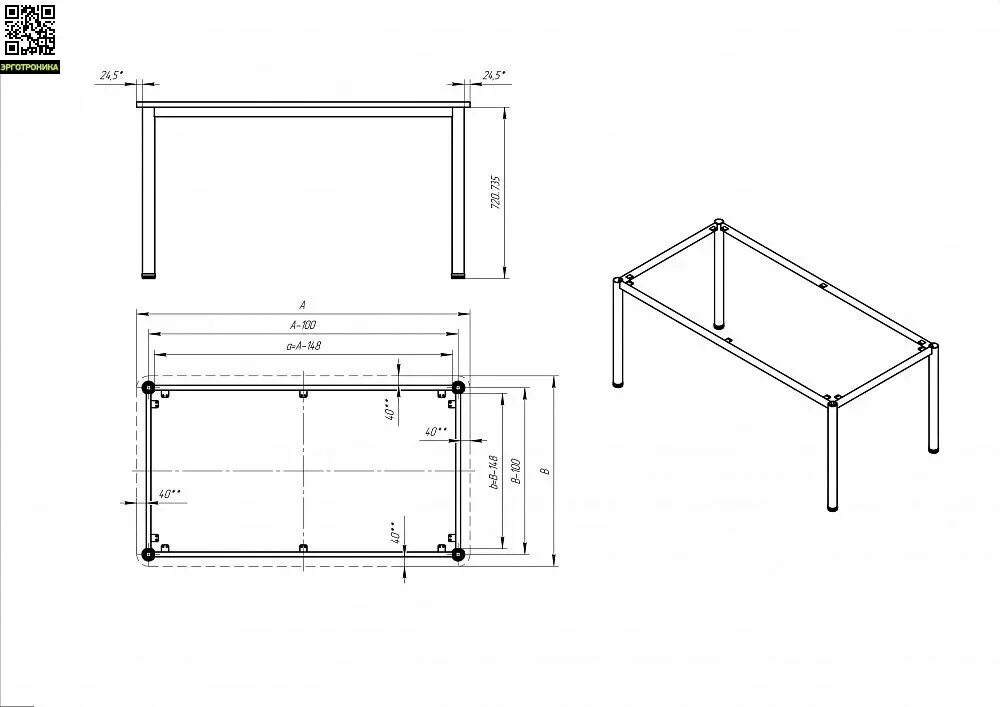
Чертежи подстолья из профильной трубы