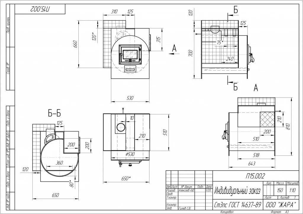
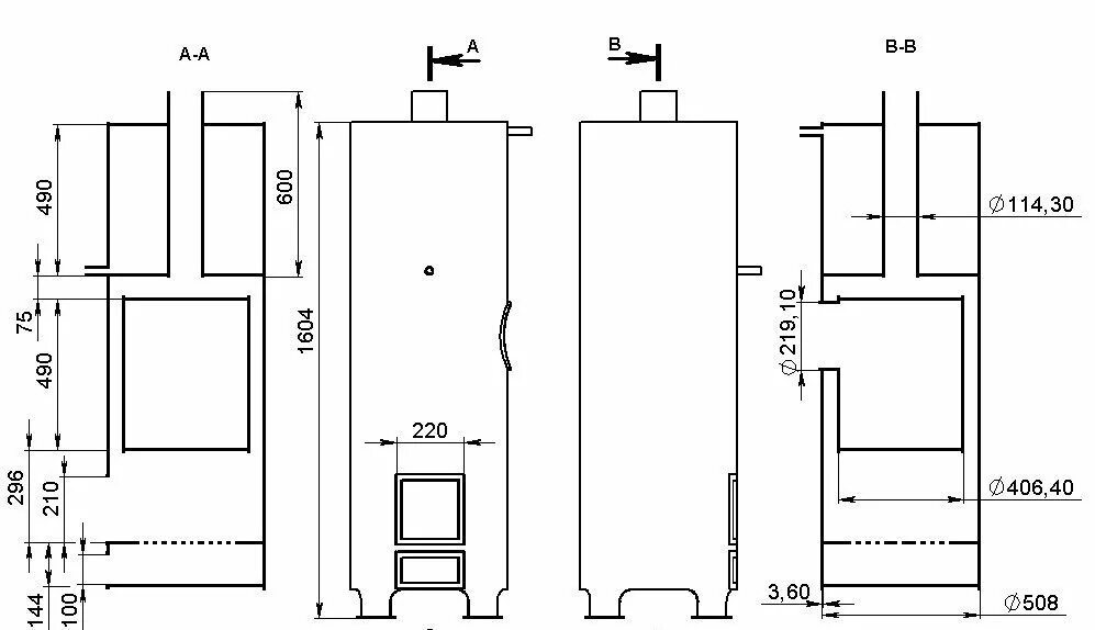
Чертежи печки трубы