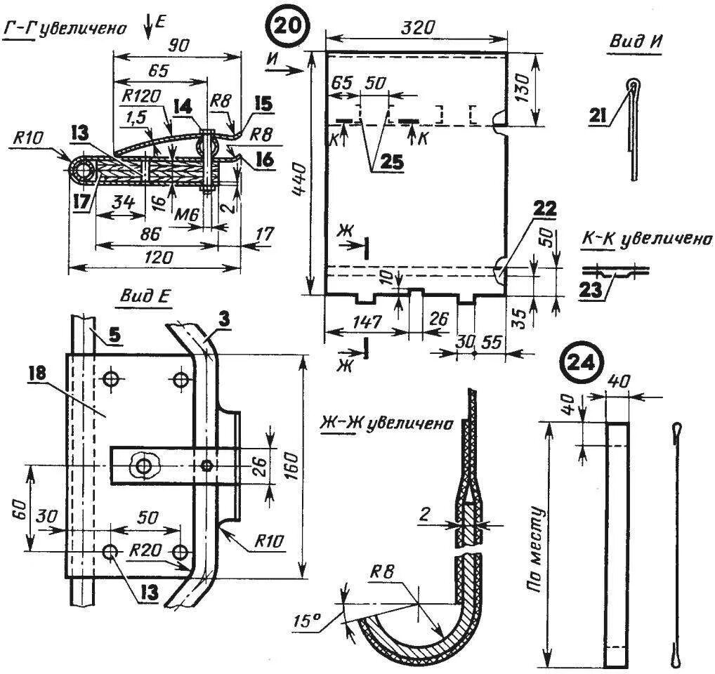
Чертеж транцевых колес