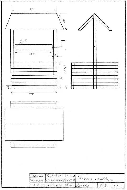
Чертеж колодца из дерева