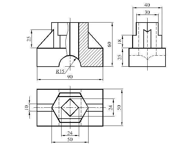
Черчение 9 класс фгос