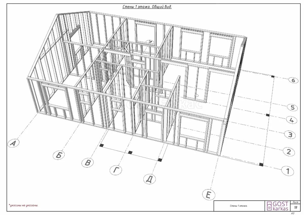
Бесплатные чертежи каркасного дома