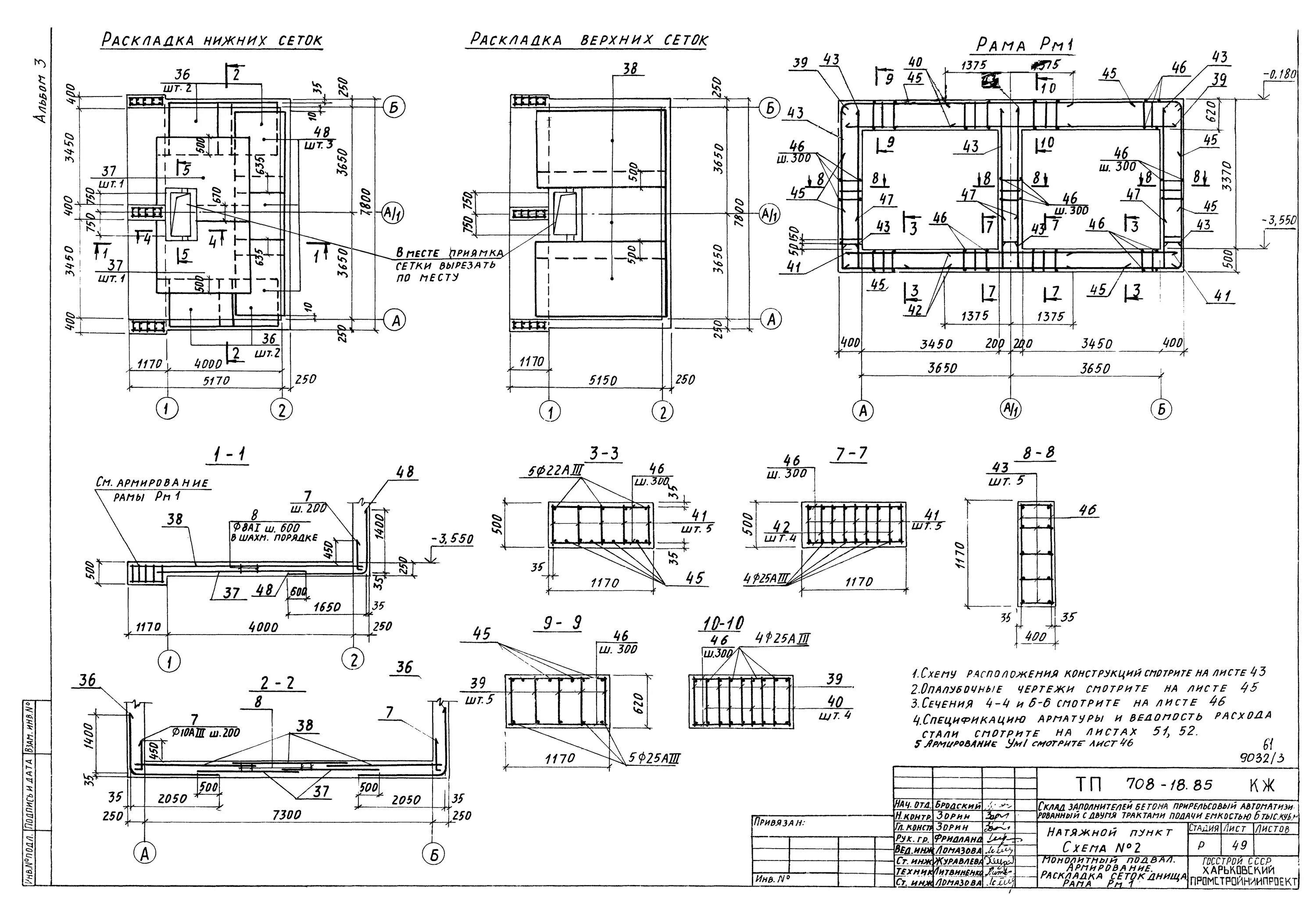
Армирование подвала