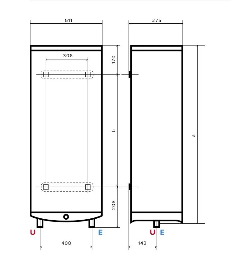
Ariston abs vls pro inox 80