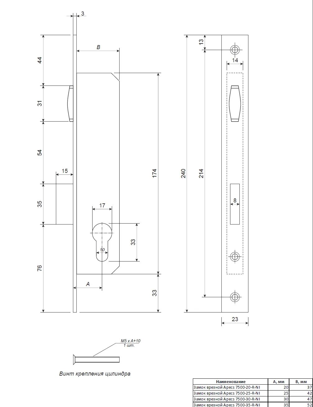
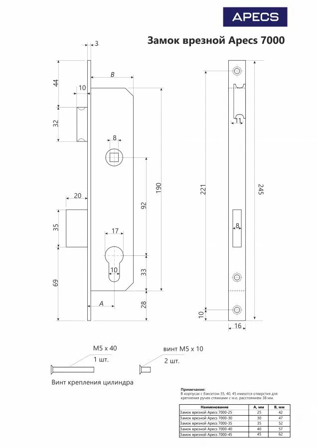
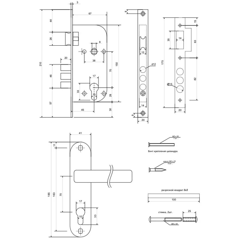
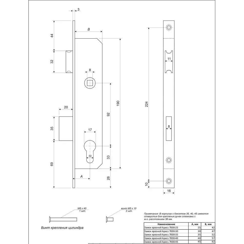
Apecs 25